Did Y'all Hear...
...Puff Diddy—or Fiddle Faddle or Diddle Daddy or whatever name multi-monikered music mogul and entrepreneur Sean Combs goes by nowadays—pushed his plush one bedroom Midtown Manhattan pied-a-terre on the market this week with a sky-high $8,500,000 asking price? Well, he did, as first reported yesterday in the Post.
Mister Diddy clearly hopes to double his real estate money; Public property records reveal he scooped up the high-floor urban spread in 2005 for $3,820,000. It remains to be seen if that's realistic but not bad work if you can get it, right?
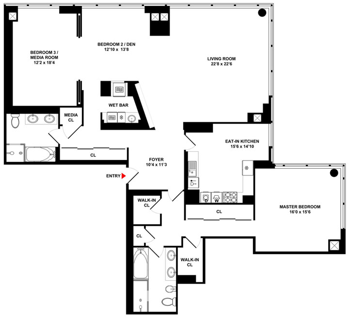
Listing information shows the 2,292 square foot apartment—set 700 (or so) vertiginous feet off the street on the 66th floor of the mixed-used Park Imperial building—was originally designed with three bedrooms and 3.5 bathrooms but is currently configured with just one bedroom, two (or maybe 2.5) bathrooms plus a media lounge and a piano room with built-in wet bar.
Diddy's digs are "fully customized for the most sophisticated living," according to current listing information, and include a marble-clad foyer—natch—and a nearly 500 square foot living room geared-up with 9-foot flat-screen tee-vee and blessed with two full walls of floor-to-ceiling windows with panoramic city and Central Park views. The adjacent and (no-doubt) swankly accoutered eat-in kitchen is outfitted with a breakfast banquette—which we love because we're mad for a well-conceived built-in banquette—and the master suite, a rear flank tucked privately behind the kitchen, is practically crowded with a quartet of closets, two of them walk-ins.
Being the super-slick and filthy rich cat he is, Mister Diddy equipped the apartment with a new-fangled home automation system that controls the window shades, lighting, and state-of-the-art audio/visual equipment.
Mister Diddy putting his big ol' one bedroom up for sale isn't such a shocker to celebrity property watchers and real estate gossips given he's been spotted peeping far more consequential, multimedia tycoon-worthy cribs around town such as an almost twenty million dollar duplex penthouse in TriBeCa, now listed for considerably less at $16.9 million. Maybe he ought to have another look-see around there?
The blinged-out entertainer currently also maintains a waterfront mansion with a dozen poopers on star-studded Star Island in Miami Beach (FL), a hideaway in the Hamptons where he frequently hosts his annual White Party, and a large residence in the exclusive and affluent bedroom community of Alpine, NJ.
exterior photo: Kate Lenova for Property Shark
floor plan: Prudential Douglas Elliman
Mister Diddy clearly hopes to double his real estate money; Public property records reveal he scooped up the high-floor urban spread in 2005 for $3,820,000. It remains to be seen if that's realistic but not bad work if you can get it, right?
Listing information shows the 2,292 square foot apartment—set 700 (or so) vertiginous feet off the street on the 66th floor of the mixed-used Park Imperial building—was originally designed with three bedrooms and 3.5 bathrooms but is currently configured with just one bedroom, two (or maybe 2.5) bathrooms plus a media lounge and a piano room with built-in wet bar.
Diddy's digs are "fully customized for the most sophisticated living," according to current listing information, and include a marble-clad foyer—natch—and a nearly 500 square foot living room geared-up with 9-foot flat-screen tee-vee and blessed with two full walls of floor-to-ceiling windows with panoramic city and Central Park views. The adjacent and (no-doubt) swankly accoutered eat-in kitchen is outfitted with a breakfast banquette—which we love because we're mad for a well-conceived built-in banquette—and the master suite, a rear flank tucked privately behind the kitchen, is practically crowded with a quartet of closets, two of them walk-ins.
Being the super-slick and filthy rich cat he is, Mister Diddy equipped the apartment with a new-fangled home automation system that controls the window shades, lighting, and state-of-the-art audio/visual equipment.
Mister Diddy putting his big ol' one bedroom up for sale isn't such a shocker to celebrity property watchers and real estate gossips given he's been spotted peeping far more consequential, multimedia tycoon-worthy cribs around town such as an almost twenty million dollar duplex penthouse in TriBeCa, now listed for considerably less at $16.9 million. Maybe he ought to have another look-see around there?
The blinged-out entertainer currently also maintains a waterfront mansion with a dozen poopers on star-studded Star Island in Miami Beach (FL), a hideaway in the Hamptons where he frequently hosts his annual White Party, and a large residence in the exclusive and affluent bedroom community of Alpine, NJ.
exterior photo: Kate Lenova for Property Shark
floor plan: Prudential Douglas Elliman

